Floorplans
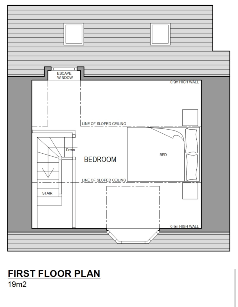
Also available in PDF format with additional information such as dimensions and locations of safety equipment. Ground floor. First floor. Plan & Elevation.
Also available in PDF format with additional information such as dimensions and locations of safety equipment. Ground floor. First floor. Plan & Elevation.